您好,欢迎来到志合鲁班门窗|佛山志合鲁班门窗|佛山十大品牌铝合金门窗|佛山品牌铝合金门窗生产销售|全国著名品牌铝合金门窗|佛山阳光房生产销售|志合鲁班|佛山志合鲁班!

专注于高端铝合金门窗、阳光房生产销售

拥有一批强有力的生产技术人员

全国服务热线

4008085695

热门关键词:志合鲁班,志合鲁班门窗,佛山志合鲁班门窗,佛山十大品牌铝合金门窗,佛山品牌铝合金门窗 全国著名品牌铝合金门窗,佛山志合鲁班,志合门窗,佛山志合门窗,志合鲁班门窗,广东省铝生产销售,广东省阳光房生产销合金门窗售,

行业百科

行业百科

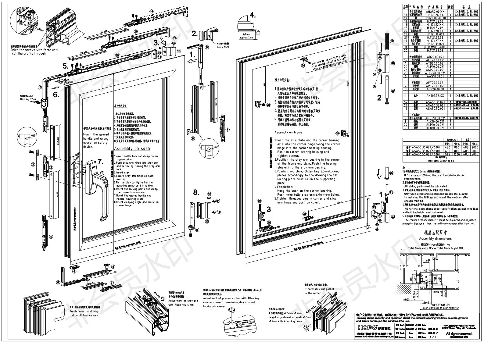
安装图解

  • 发布时间:2020-04-07
  • 发布者: 本站
  • 来源: 原创
  • 阅读量:
志合鲁班,佛山志合鲁班,志合门窗,佛山志合门窗,志合鲁班门窗,佛山志合鲁班门窗,广东省铝合金门窗生产销售,广东省阳光房生产销售,

4008085695

扫一扫

手机官网